Chorzowska Spółdzielnia Mieszkaniowa ogłasza  przetarg nieograniczony na ustanowienie odrębnej własności lokalu mieszkalnego przy ul. ks.Wł. Opolskiego 1/31 w Chorzowie

zgodnie z Regulaminem określającym tryb i zasady przetargu na ustanowienie odrębnej własności lokalu mieszkalnego

Cena wywoławcza stanowiąca wartość nieruchomości: 212 873,60 zł

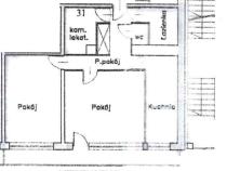
  • powierzchnia użytkowa: 51,80 m2
  • 2 pokoje, kuchnia z oknem,  łazienka, wc,  przedpokój, III piętro, ogrzewanie centralne do którego przynależy komórka o powierzchni 4,00m2 
  • Parametry energetyczne lokalu:
    • wskaźnik rocznego zapotrzebowania na energię użytkową: EU= 87,20   kWh/(m2 · rok)
    • wskaźnik rocznego zapotrzebowania na energię końcową: EK= 120,50  kWh/(m2 · rok)
    • wskaźnik rocznego zapotrzebowania na nieodnawialną energię pierwotną: EP=109,70  kWh/(m2 · rok)
    • jednostkowa wielkość emisji CO2: E co2 = 0,0309 t CO2/(m2 · rok)
    • udział odnawialnych źródeł energii w rocznym zapotrzebowaniu na energię końcową: UOZE = 0,00 %

OFERTA 

  • termin składania ofert do dnia: 15.04.2026 r.  do godz. 15:00
  • miejsce składania ofert: Sekretariat Spółdzielni ul. Kopalniana 4A, pok. 29
  • oferta powinna być sporządzona wg wzoru stanowiącego załącznik nr 1 do Regulaminu określającego tryb i zasady przetargu na ustanowienie odrębnej własności lokalu mieszkalnego
  • wzór oferty dostępny na stronie internetowej www.chsm.com.pl lub w  siedzibie Spółdzielni przy ul. Kopalnianej 4A w Chorzowie – Dział Członkowsko-Mieszkaniowy

WADIUM:

  • wysokość wadium wynosi: 21 300,00   zł
  • termin wpłaty wadium: 21.04.2026 r.
  • nr rachunku bankowego do wpłaty wadium: BP PKO O/Chorzów  nr 09 1020 2368 0000 2002 0022 8445, wadium uznaje się za wpłacone z chwilą uznania środków na rachunku bankowym Spółdzielni

PRZETARG:

  • przetarg na lokal odbędzie się w dniu: 22.04.2026 r. o godz. 11:00, w pokoju nr 28, w siedzibie Spółdzielni przy ul. Kopalnianej 4A
  • w przypadku nieobecności oferenta jego oferta nie będzie otwarta i oferent nie bierze udziału w przetargu
  • w przypadku wielości ofert Spółdzielnia zastrzega sobie  możliwość zmiany miejsca rozstrzygnięcia przetargu

INFORMACJE DODATKOWE:

  • adres kancelarii notarialnej, w której po przetargu zostanie zawarty akt notarialny: Kancelaria Notarialna Danuty Bańczyk, Chorzów, ul. Wolności 16/4
  • Regulamin określający warunki przetargu dostępny jest do wglądu w Dziale Członkowsko-Mieszkaniowym Spółdzielni oraz na stronie internetowej www.chsm.com.pl

KONTAKT W SPRAWIE PRZETARGU I OGLĘDZIN LOKALU:

  • Dział Członkowsko-Mieszkaniowy: ul. Kopalniana 4A, 41-500 Chorzów, tel. 32 2415-208 wew. 301, 302, 304, 305 – sprawy formalne
  • Dział Opłat: ul. Kopalniana 4A, 41-500 Chorzów, tel. 32 2415-208 wew. 317 – sprawy finansowe
  • Administracja Osiedla „Centrum”: ul. Krasickiego 7A, 41-500 Chorzów, tel. 32 241-35-97, 32 241-41-16 – sprawy techniczne i oględziny lokalu 

Spółdzielnia może odstąpić od przetargu na każdym etapie bez podania przyczyn.
 

  • rzut
    Przetarg - Opolskiego 1/31
  • Przetarg - ks.Wł. Opolskiego 1/31 w Chorzowie
    Przetarg - Opolskiego 1/31
  • Przetarg - ks.Wł. Opolskiego 1/31 w Chorzowie
    Przetarg - Opolskiego 1/31
  • Przetarg - ks.Wł. Opolskiego 1/31 w Chorzowie
    Przetarg - Opolskiego 1/31
  • Przetarg - ks.Wł. Opolskiego 1/31 w Chorzowie
    Przetarg - Opolskiego 1/31
  • Przetarg - ks.Wł. Opolskiego 1/31 w Chorzowie
    Przetarg - Opolskiego 1/31
  • Przetarg - ks.Wł. Opolskiego 1/31 w Chorzowie
    Przetarg - Opolskiego 1/31
  • Przetarg - ks.Wł. Opolskiego 1/31 w Chorzowie
    Przetarg - Opolskiego 1/31
  • Przetarg - ks.Wł. Opolskiego 1/31 w Chorzowie
    Przetarg - Opolskiego 1/31
  • Przetarg - ks.Wł. Opolskiego 1/31 w Chorzowie
    Przetarg - Opolskiego 1/31
  • Przetarg - ks.Wł. Opolskiego 1/31 w Chorzowie
    Przetarg - Opolskiego 1/31
  • Przetarg - ks.Wł. Opolskiego 1/31 w Chorzowie
    Przetarg - Opolskiego 1/31
  • Przetarg - ks.Wł. Opolskiego 1/31 w Chorzowie
    Przetarg - Opolskiego 1/31
  • Przetarg - ks.Wł. Opolskiego 1/31 w Chorzowie
    Przetarg - Opolskiego 1/31
  • Przetarg - ks.Wł. Opolskiego 1/31 w Chorzowie
    Przetarg - Opolskiego 1/31